学校、医院等建筑改造加固是否一定要做减隔震?这是最近经常听到的一个话题,特别是近两年做学校医院类改造的朋友肯定都碰到过这个问题,产生这个问题的根源主要是在2021年国务院版本的《建设工程抗震管理条例》(公众号第二条发布了该内容的全文,感兴趣的朋友可以阅读下)的第二十一条规定:
△ 《建设工程抗震管理条例》相关条文

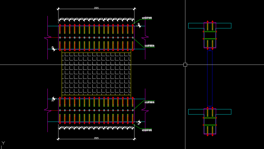
△ 某项目防屈曲耗能钢板(BRW)详图
上面这段话,特别是框出来的部分被大家普遍理解成了三个意思:(2)应采用隔震减震等技术,如果不采用必须要经过专家论证;这三种理解都普遍存在在设计人员和审查人员中,常常导致设计人员很难把握具体怎么实施。以上海地区为例,笔者及同事参与的几个学校改造项目,经与审图人员沟通,大部分都是按第(2)种来理解并对设计提出要求。对于一般混凝土框架结构还算比较好处理,一般的减震措施就能处理,某种程度上还可以降低工程造价,是可行的。但是对于砌体结构而言,大部分情况减震措施很难实施,只能通过隔震措施来处理,这往往是很难被业主接受的,实施难度也很大,有部分项目因为此种原因不得不放弃改造。不难发现,其实按第(1)(2)种理解还是不太合理的,这就好比去医院看病,医院指定只能做手术治疗或者上医疗器械,不难不让人怀疑其中有什么猫腻。群里有位大佬说的很精辟:本来只想延年益寿,你非要让他返老还童。用新建建筑的标准来要求既有建筑,这肯定是不科学的。幸好北京地区在《审图常见问题解析(一月一答)》2023年8月版中给出了答复,明确了应按第(3)种理解来实施:

△ 《审图常见问题解析(一月一答)》相关条文
在这里只能羡慕首都的朋友了,前有关于新近建筑相关检测要求的规定(竣工10年以内工程改造可以不用检测了),今有减隔震的相关解释,为设计和审图人员都指明了方向,必须要点赞。其他高烈度地区的朋友,如果当地没有明确规定,那只能加强与审图人员沟通,争取能获取合理可行的解决方案。
以上内容仅代表个人观点,作者水平所限,旨在抛砖引玉,欢迎提出更多更好的办法解决此问题,欢迎留言讨论!